(一)专项素质 20分
场地移动 20分
(二)专项基本技术 50分
1. 后场高球 20分
2. 后场杀球 15分
3. 网前球 15分
(三)实战比赛与综合能力 30分
二、测试方法与评分标准
(一)专项素质(20分)
专项素质主要以场地移动测试为主,分值为20分。
1.测试方法
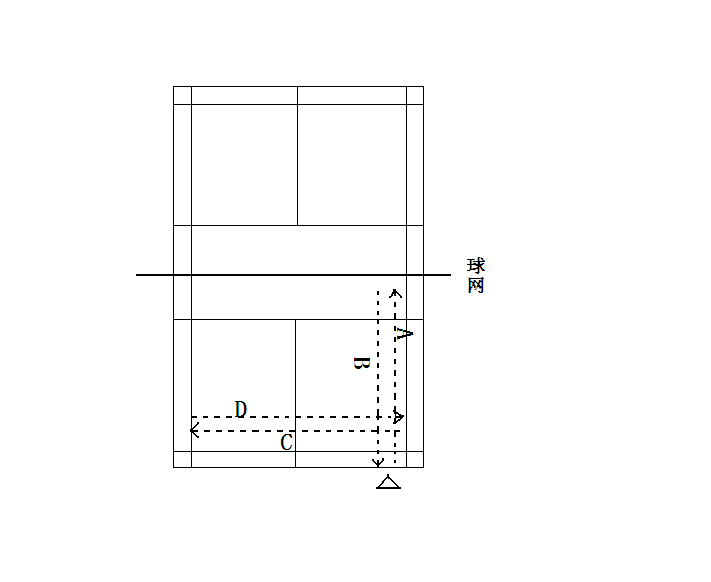
考生站在场地右侧单打底线以外(右手持拍)先进行前后移动,听到口令(同时开表)后,直线上网,单手触网后,直线后退踩底线为一个完整来回,往返进行5次。第5次上网触网后,后退踩底线的同时要求双脚出单打边线,并继续完成5次左右移动。
左右移动:当完成前后移动后采用向左侧移动的步法至场地左侧单打边线处,用持拍手触单打边线,面向球网转身,然后用向右侧移动的步法至场地右侧单打边线处,用持拍手触单打边线,为一次完整左右移动。如此往返进行5次。当完成第5个回合的左右移动后在右侧(右手持拍)触单打边线时停表,记录所用时间(见图1)。

Ⅰ从△处起跑,
Ⅱ向前移动A触网,
Ⅲ向后退B踩底线,
Ⅳ前后移动十次后,从单打边线外踩底线向左移动C摸单打边线。
Ⅴ面对球网顺时针转体向右侧移动D摸右侧单打边线后面对球网逆时针转体,左右来回共十次。
有关要求:前后移动没有踩线或触网视为没有完成测试,考评员宣报“没有触网”或“没有踩线”后考生要重新踩线或触网才能继续完成后面的测试。左右移动时没有触线或在左侧场区边线触线后没有面对球网转体。考评员宣布“没有触线”或“转身错误”后考生要重新触线或回到边线处面对球网转体才能继续完成后面的测试。
(2)成绩评定(见表1)
场地移动素质测试允许测试两次,第一次测试结束后考评员集合考生公布成绩,给考生第二次测试选择机会,如果选择第二次测试,第一次成绩视为无效。
(二)专项基本技术(50分)
1.后场高球(20分)
(1)测试方法
考生可选左侧或右侧场区为本项目考试场区,由考评员发高球,考生站在左(右)场区双打后发球线外起跳交替击打直线和斜线高球。
高球落点有效区域:对方场区双打后发球线、单打边线、底线和距单打边线1.3米处竖线形成的长方形区域。
考评员连续发球(5秒发一个球),考生直线和斜线交替击打高球共十个。计成功次数(见图2)。

图2 后场高球场地示意图
Ⅰ站在双打后发球线外A或B处打高球进入目标C/D区域
Ⅱ站在A点打高球顺序为C-D-C-D-C-D-C-D-C-D
Ⅲ站在B点打高球顺序为D-C-D-C-D-C-D-C-D-C
有关要求:考生在双打后发球线后准备击球。考评员发球后考生起跳交替击打直线和斜线高球。起跳击球时最后离地脚要在双打后发球线外(含踩线)。
(2)评分标准
要求快速起跳击打高球,击球以平高或高远球方式击出。球被击出时直接向前飞行,低于击球点视为非高球技术,成绩无效。考评员发球没有发到考生站位区域时,考生可以不接,考评员重新发球。成绩计算(见表1),如果球落到底线、单打边线、双打后发球线和中线构成的长方形区域内,视为发球有效,即考生一个测试球未进入合格区内。
2.后场杀球(15分)
(1)测试方法
考生可选左侧或右侧场区为本项目考试场区,由考评员发高球,考生站在左(右)场区双打后发球线外起跳交替击打直线和斜线杀球。
杀球落点有效区域:对方场区前发球线、单打边线、底线和距单打边线0.8米处的竖线形成的长方形区域。
考评员连续发球(5秒发一个球),考生直线和斜线交替击打杀球共十个。计成功次数(见图3)。、

图3 后场杀球场地示意图
杀球落点目标区域为C、D
Ⅰ站在双打后发球线外A或B处杀球进入目标C/D区域
Ⅱ站在A点打杀球顺序为C-D-C-D-C-D-C-D-C-D
Ⅲ站在B点打杀球顺序为D-C-D-C-D-C-D-C-D-C
要求:考生在双打后发球线后准备击球。考评员发球后考生起跳交替击打直线和斜线杀球。起跳击球时最后离地脚要在双打后发球线外(含踩线)。
(2)评分标准
要求快速起跳击打杀球,击球要用力向下扣杀。球飞行后要明显向下直飞,过网后快速下沉的球视为吊球,判杀球进区无效。考评员发球没有发到考生站位区域时,考生可以不接,考评员重新发球。成绩计算(见表1),如果球落到底线、单打边线、双打后发球线和中线构成的长方形区域内,视为发球有效,即考生一个测试球未进入合格区内。
杀球后球飞行撞球网滚网过,因为没有到达目标区域,视为这个杀球未进入合格区域。
3.网前球(15分)
(1)测试方法
考生可选左侧或右侧场区为本项目考试场区,考生站在左(右)场区前发球线后准备击球,由考评员扔网前球,考生跨步上网进行放网和勾球交替击球。
网前球落点有效区域:球网、单打边线、距球网0.8米的横向标记线和距单打边线0.8米处的竖向标记线形成的正方形区域。
考评员连续扔网前球5秒扔一个球,考生进行放网和勾球交替击球共十个。计成功次数(见图4)

图4 网前球场地示意图
网前球落点目标区域为C、D
Ⅰ站在前发球线外A或B处进行放网和勾球进入目标C/D区域
Ⅱ站在A点打前场球顺序为C-D-C-D-C-D-C-D-C-D
Ⅲ站在B点打前场球顺序为D-C-D-C-D-C-D-C-D-C
有关要求:考生在前发球线外准备。考评员扔球后跨步上网放网和勾球。
(2)评分标准
考评员扔球没有进入有效区(E/F),考生可以不接球,考评员重新发球。成绩计算(见表1),如果考评员的扔球进入前场有效区域(E/F)内考生未接球,本次扔球有效,视考生一次测试球未进入合格区内。考评员扔球滚网,视扔球无效,重新扔球。
考评员扔球有效区:球网、单打边线、距球网1米的横向标记线和距单打边线1米处的竖向标记线形成的正方形区域。(见图4)
表1 羽毛球专项基本技术评分标准
|
分值 |
后场高球 |
后场杀球 |
网前球 |
场地移动(秒) |
|
|
男 |
女 |
||||
|
20 |
7 |
/ |
/ |
35 |
38 |
|
19 |
/ |
/ |
/ |
35”3 |
38”3 |
|
18 |
6 |
/ |
/ |
35”6 |
38”6 |
|
17 |
/ |
/ |
/ |
35”9 |
38”9 |
|
16 |
5 |
/ |
/ |
36”2 |
39”2 |
|
15 |
/ |
7 |
7 |
36”5 |
39”5 |
|
14 |
4 |
/ |
/ |
36”8 |
39”8 |
|
13 |
/ |
6 |
6 |
37”1 |
40”1 |
|
12 |
3 |
/ |
/ |
37”4 |
40”4 |
|
11 |
/ |
5 |
5 |
37”7 |
40”7 |
|
10 |
2 |
/ |
/ |
38 |
41 |
|
9 |
/ |
4 |
4 |
38”3 |
41”3 |
|
8 |
1 |
/ |
/ |
38”6 |
41”6 |
|
7 |
/ |
3 |
3 |
38”9 |
41”9 |
|
6 |
/ |
/ |
/ |
39”2 |
42”2 |
|
5 |
/ |
2 |
2 |
39”5 |
42”5 |
|
4 |
/ |
/ |
/ |
39”8 |
42”8 |
|
3 |
/ |
1 |
1 |
40”1 |
43”1 |
|
2 |
/ |
/ |
/ |
40”4 |
43”4 |
|
1 |
/ |
/ |
/ |
40”7 |
43”7 |
(三)实战比赛与综合能力(30分)
1.测试方法
由考评员组织,考生同时抽签配对进行比赛。比赛采用21分每球得分赛制一局决胜负,11分交换场地。
2.评分标准
据考生在技战术运用和体能状态比赛中作风综合评分。
满分30分,按优秀、良好、及格、不及格四个等级标准评分。
表2 实战比赛与综合能力评分标准
|
级别 |
评分标准 |
分值 |
|
优秀 |
比赛中技术动作规范、很好的运用战术、场上作风顽强、身体素质全面 |
30-26 |
|
良好 |
技术动作较规范、战术运用合理、场上作风顽强、身体素质良好 |
25-21 |
|
及格 |
技术动作一般、能运用较单一战术、场上作风一般、身体素质一般 |
20-15 |
|
不及格 |
技术动作不全面、不能有效的运用战术、场上作风一般、身体素质较差 |
14-0 |
三、测试基本器材
标准羽毛球场地;标准羽毛球10筒;秒表3—5个;白胶带5卷;米尺1—2个。
